 |
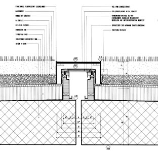
1. Permasteelisa, Torre Agbar, ventana tipo, fragmento de detalle
La llamativa y rotunda presencia de la Torre Agbar se ha convertido en algo ya familiar para turistas y ciudadanos de Barcelona. Esta ilustración
(fig. 1)
muestra un fragmento del detalle constructivo típico de las ventanas de su característica y compleja piel. Se trata de un plano de montaje, de carácter puramente técnico y operativo, desarrollado por la ingeniería de la empresa Permasteelisa, adjudicataria de la construcción de la fachada.
El dibujo representa una sección vertical por la parte superior del hueco. En él se pueden apreciar los perfiles de la carpintería, su sistema de fijación al muro de hormigón de soporte, las capas del revestimiento exterior del muro así como la resolución de las embocaduras de remate interior del perímetro interior del hueco. El resultado es una representación gráficamente convencional que refleja minuciosamente los diferentes componentes y sus correspondientes llamadas a una leyenda general. Hay algo en el dibujo, sin embargo, que lo hace extrañamente interesante: un trazado de líneas discontinuas representa el perímetro del muro del hormigón y de la embocadura en diferentes posiciones. Es la representación de la “tolerancia de ejecución” prescrita en el proyecto.
La “tolerancia de ejecución” no es más que el intento de acotar las desviaciones y movimientos que se dan entre los diferentes procesos de materialización y construcción para hacerlos compatibles entre sí y para asegurar su calidad geométrica final. Su representación es, pues, la plasmación gráfica de una inevitable falta de perfección material. Las líneas discontinuas reflejan así el límite máximo aceptable de desviación en la posición relativa del muro de hormigón con respecto a su posición teórica y las diferentes posiciones que asumirán las embocaduras de chapa de acero inoxidable para adaptarse a estas diferentes situaciones, actuando, en este caso, como unos apéndices capaces de absorber las imperfecciones gracias a su posición ligeramente abocinada con respecto a la geometría del hueco. Se trata de un recurso constructivo técnicamente simple y formalmente atractivo, pero también de gran originalidad e ingenio
(fig. 2).
|
 |
2. Torre Agbar. Vista interior.
El detalle muestra no sólo la posición teórica de los diferentes componentes, sino que deja entrever también cierta área en la que podríamos situarlos sin perjuicio de la solución técnica. De hecho, la posición teórica, la que se representa de manera nítida, no tiene porque ser una posición real. Se trata sólo de una referencia para el montaje que puede no coincidir exactamente con ninguno de los casos ejecutados. Algo similar ocurre con la representación de objetos donde la incertidumbre de su posición acaba reflejándose gráficamente mediante una nueva figura geométrica que poco tiene que ver con el objeto inicial (fig. 3).
|
 |
3. Representación de la probabilidad de distribución de un electrón alrededor del núcleo de un átomo e imagen de la superficie límite de su órbita.
A partir de aquí podemos plantearnos cuestiones cuyas respuestas no son evidentes: ¿cómo representar adecuadamente las desviaciones que suponen los procesos de materialización de la arquitectura?, o en consecuencia, ¿cómo gestionar esa imperfección?
Si realzáramos el área límite de probable posición de los componentes de la ventana dentro de su tolerancia admisible generaríamos unas manchas que desdibujarían la precisa representación del detalle constructivo, emborronando los límites entre los distintos componentes hasta convertirlos una especie de imagen “movida”, “desenfocada” (fig. 4).
|
 |
4. Retoques sobre la imagen original.
El resultado resulta sugerente, con ciertas similitudes con la serie de vaporosas fotografías de diferentes edificios que realizó Hiroshi Sugimoto con el objetivo enfocado siempre hacia el infinito (fig. 5), resaltando así los valores generales de la arquitectura por encima de las particularidades de su ejecución. Su operatividad como estrategia de representación técnica, sin embargo, parece bastante limitada por su carácter indefinido.
Conviene hacer notar, además, que la representación que se ha hecho aquí de la imperfección en el detalle constructivo es tendenciosa, pues refleja “la de los demás”. En efecto, si bien todos los elementos constructivos tienen una tolerancia de ejecución y unos previsibles movimientos, ya sean de mayor o menor magnitud, el dibujo representa sólo unas pocas: aquellas que suponen la frontera de relación entre los diferentes industriales involucrados, en este caso la estructura de hormigón y los elementos de fachada ligera que conciernen a la empresa fachadista, del resto se desconoce su tratamiento exacto.
En cierta forma, la operación se asemeja a aquel actor en horas bajas que aparecía permanentemente desenfocado en una película de Woody Allen, mientras que el resto mostraba una apariencia normal (fig. 6). Se trata de una visión selectiva del problema que, en este caso, no deja de tener lógica, ya que el mayor riesgo de desviaciones geométricas corresponde a las piezas representadas y, además, el objetivo concreto del dibujo es acotar las reglas del juego entre industriales y no tanto reflejar la gestión completa de la probable imperfección real del conjunto, que aun habría desdibujado más el detalle.
|
 |
|
 |
5.
H. Sugimoto, Villa Figini
|
|
6.
W. Allen, Deconstructing Harry |
En cualquier caso, esta estrategia gráfica de gestión de la incertidumbre material mediante el solape y la disolución de los límites no parece casar bien con las exigencias de precisión propias de los procesos de puesta en obra convencionales. Requeriría de planteamientos arquitectónicos en los que el proceso de definición quedara abierto, en los que el dibujo fuera sólo una insinuación, esperando a su fase de materialización para acabar de concretarse.
Esto es lo que parece suceder, por ejemplo, en algunos de los dibujos de J. M. Jujol, (fig. 7), en los que las enmarañadas representaciones de los contornos parecen anunciar más bien excitantes acontecimientos por venir que una solución totalmente pensada y definida, algo que consecuentemente luego se refleja en su arquitectura, en la que muchos de sus límites acaban diluyéndose por la sombra, la decoración o simplemente la suciedad acumulada, y en las que la casualidad, el paso del tiempo o el estado de ánimo en el momento de ejecución parecen integrarse también de forma natural (fig. 8).
|
 |
|
 |
7. J.M. Jujol, Casa Mañach
|
|
8.
Casa Mañach |
El caso contrario sería la extendida tendencia de mucha de la arquitectura contemporánea que pretende el control absoluto de la imperfección, reduciéndola al mínimo posible. Así, por ejemplo, podemos encontrar el obsesivo estudio de los despieces de las lajas de piedra del revestimiento de las Termas de Vals (fig. 9), obra de Peter Zumthor, en el que los diferentes tamaños de las hiladas confieren una apariencia casual y aleatoria al conjunto (fig. 10), cuando en realidad se ajustan a una minuciosa modulación en la que cada tramo ha sido cuidadosamente dibujado para que todas las juntas coincidan y no se corte ni una pieza, y en el que las desviaciones materiales no se prevén gráficamente, pudiendo asumirse únicamente en unas juntas de mortero de muy pocos milímetros de espesor. Auténtica precisión suiza.
|
 |
|
 |
9.
Peter Zumthor, Termas de Vals
|
|
10. Termas de Vals, interior |
Curiosamente, la realidad no se deja dominar fácilmente, y cierta imperfección acaba mostrándose en los lucernarios de cubierta (fig. 11 y 12), en los que el precioso diseño del detalle de proyecto queda distorsionado por la evidencia de unos movimientos relativos no previstos entre las diferentes losas en voladizo que, sin tocarse entre ellas, delimitan los bordes de estas rendijas de luz.
|
 |
|
 |
11. Peter Zumthor, Termas de Vals, detalle de los lucernarios
|
|
12. Termas de Vals, estado actual de los lucernarios |
| Un planteamiento intermedio sería el caso de la ventana de la Torre Agbar que nos ocupa, en el que la imperfección se acota dentro de un margen, generando incluso mecanismos arquitectónicos específicos para su control: unas embocaduras brillantes y reflectantes que, curiosamente, acaban desmaterializando y confundiendo también los límites aparentes del hueco desde el interior.
En cualquier caso, la imperfección de los procesos de materialización arquitectónica no parece ser una realidad con la cual a los arquitectos nos suela apetecer tener más tratos que los justos. Raramente es incorporada como tema importante a la propia reflexión arquitectónica y menos reflejada gráficamente. La resolución del perímetro interior de los huecos de las ventanas de la Torre Agbar constituye, en este sentido, un caso relativamente singular de indudable interés. Si bien aquí la imperfección no se ha hecho totalmente visible, sí que se revela físicamente de manera notoria a través de los elementos que la gestionan.
Así ocurre también con otras operaciones más convencionales como serían la generación de holguras, la previsión de juntas o la colocación de tapajuntas, todos ellos verdaderos “sumideros de imprecisión” que, a pesar de su relevante misión, suelen ser considerados más como una molestia a evitar o un problema de segunda categoría que como algo interesante con respecto al discurso arquitectónico principal. Es significativo constatar, en este sentido, que cerca está la resolución material de la discreta puerta de servicio que emplea el mayordomo de la película “Lo que queda del día” (fig. 13) de muchas de las construcciones actuales más celebradas (fig. 14). El único objetivo parece ser el ocultar al máximo su presencia mediante una sencillez formal extrema que supone, como consecuencia, una exigencia constructiva sin margen para el error.
|
 |
|
 |
13. J. Ivory, Lo que queda del día
|
|
14.
Casa da Música, Oporto, OMA, interior |
El caso de la ventana de la Torre Agbar nos recuerda, sin embargo, que también “la arruga es bella”, tal como nos alertaba una antigua campaña publicitaria. El contraste entre el tosco borde interior del muro de hormigón pintado, con las trazas vistas de su proceso de construcción, y la pulcra y afilada línea que dibujan las abocinadas embocaduras de acero inoxidable, no hace otra cosa sino dar valor al conjunto gracias a la visibilidad de la imperfección de los procesos de materialización (fig. 15). Representar y reconocer esta imperfección puede suponer, en este sentido, un primer y valioso paso para su incorporación en el proceso de proyecto
|
 |
15.
Torre Agbar, interior del hueco de ventana
|
Procedència de les imatges:
1 -
Planos de taller elaborados por Permasteelisa. Archivo particular b720 arquitectos
2 - Jean Nouvel 1987-2006. A+U, 06:04 Special Issue. Tokyo, 2006
3 - https:/imgres_files/a_data/D-orbitals.jpg
4 -
El autor.
5 - Sugimoto: Architecture (exposición comisariada por Francesco Bonami), Hatje Cantz y Chicago, Museum of Contemporary Art, 2007.
6 -
Woody Allen, Deconstructing Harry, Sweetland Films. 1997.
7 y 8 - "Josep Maria Jujol, arquitecte. 1879-1949", Quaderns d'Arquitectura i Urbanisme , nº 179-180, monográfico, Barcelona, 1988-89.
9 -
Sigrid Hauser, Peter Zumthor, Therme Vals. Scheidegger & Spiess. Zurich, 2007.
10 y 11 -Sigrid Hauser, Peter Zumthor...., cit.
12 -
Fotografía del autor.
13 -
James Ivory, The remains of the day. Columbia Pictures, 1993.
14 -
Fotografía del autor.
15 -
Archivo particular b720 arquitectos.
Bibliografía recomendada:
- Torre Agbar. Pasajes Construcción 02. Madrid 2004.
-
Jean Nouvel 1994-2002, El Croquis, nº 112/113, Madrid 2002.
-
Meijs, M.; Knaack, U.: Components and connections. Principles of Construction. Birkhäuser. Basel-Boston-Berlin, 2009.
© de los textos Pablo Garrido Torres
Pablo Garrido Torres es profesor de la
Escuela Técnica Superior de Arquitectura del Vallés
|