Introducción
La planta es el primer dibujo del proyecto arquitectónico, la representación más importante del edificio, la que muestra cuál es la ocupación del espacio, cómo se organiza la forma y cómo se estructura y genera el proyecto arquitectónico. Es la proyección que da la representación sintética del edificio más fuerte. Intentaremos ahora mejorar el conocimiento de las capacidades expresivas de esta proyección en lo que afecta a la correcta representación del proyecto arquitectónico.
El dibujo de la proyección en "planta" plantea aspectos diferentes que la proyección del alzado. Diferentes porque, por un lado, el problema de sugerir la profundidad es más limitado, dado que los suelos suelen ser horizontales y las paredes verticales. Por otro, porque se trata de un dibujo más abstracto, que no podemos comparar con lo que vemos en la realidad. Si en un alzado podemos reconocer la fachada que podríamos ver del edificio si estuviéramos colocados delante de él, la planta no la podemos comparar con una visión similar, a no ser que el edificio esté derribado.
![]() |
| Monasterio de San Pedro de Arlanza, Hortigüela, Burgos, s. XI.
Ésta sería la única opción y, no obstante, la veríamos en perspectiva. Este contenido más abstracto hace que també siguió diferente el uso que hacemos de esta proyección. Algunas imágenes ayudarán a reflexionar sobre estos conceptos |
![]() |
Todos sabemos que es una planta: la proyección de un cuerpo (un edificio) sobre un plano horizontal. De acuerdo con las convenciones con las que trabajamos, en esta proyección el cuerpo debe estar colocado de manera que el plano del suelo esté también horizontal. De esta manera, las medidas del plano horizontal del cuerpo (el edificio) se proyectarán sin deformaciones. Cumpliendo estas condiciones, el resultado de la proyección será una PLANTA. Sin embargo, lo que normalmente entendemos como la PLANTA DE UN EDIFICIO es la proyección de la sección horizontal hecha a la altura de la vista de una persona de pie. Hecha a esta altura, y teniendo en cuenta las características habituales de los edificios, la sección muestra la situación de los cerramientos (muros) y de las aberturas principales (puertas y ventanas). Entendida de esta manera, la planta es la representación más importante que utilizamos de los proyectos; la manera más potente que tenemos para representarlos. De un proyecto es posible que no conozcamos los alzados pero debemos conocer al menos la planta. |
Entender el espacio a partir de una planta no es demasiado complicado, una vez se conocen las convenciones. En un caso como el siguiente, el ennegrecimiento de las partes seccionadas permite ver claramente los muros, las aberturas, las partes aparentemente cubiertas, ...
![]() |
| Mies van der Rohe, Casa Ulrich Lange, planta de la primera versión, 1935.
Sin embargo, la alta abstracción de esta planta puede dejar aspectos sin aclarar que, tal vez, el observador quisiera o debería saber, como por ejemplo, si algunos de los espacios están cubiertos o de qué manera lo están.
|
![]() |
| Mies van der Rohe, Casa Ulrich Lange, alzado de la primera versión, 1935.
Si añadimos la lectura del alzado y relacionamos ambas proyecciones, podemos ver la altura que tiene el muro, la de la ventana ... y también que hay una cubierta que une el cuerpo principal con el de la derecha, tal vez coincidiendo con las dos líneas dibujadas en la planta. La duda que se plantea ahora es saber si, del mismo moso, la zona cuadriculada de la izquierda de la planta, que sigue estas líneas, también está cubierta. Con esto vemos que esta planta plantea dudas que quedan sin resolver. Dentro y fuera, cubierto y descubierto |
Veamos ahora un ejemplo en el que este problema se resuelve.
![]() |
Esta planta no es tan fácil de entender como la anterior, debido a que corresponde a una tipología a la que no estamos habituados. Podemos identificar los muros, porque están seccionados, y también los pilares. Podríamos deducir que las líneas de pilares son el límite de un pórtico y que lo que enmarcan es un patio (vemos así tres patios, marcados con un 4). La parte inferir es más compleja, (números 5 y 6), y es difícil deducir con seguridad qué partes están cubiertas y cuáles no |
| Domus Flavia y Domus Augustana, Roma, s. I. |
|
![]() |
Esta es otra versión del mismo dibujo. Aunque no nos digan el significado de cada uno de los colores, podemos deducir que el gris claro señala las partes cubiertas pero abiertas y que el gris oscuro señala las partes cerradas y cubiertas. El color azul es agua y el verde es hierba. El dibujante ha creado unos códigos (fáciles de deducir) con los que podemos entender con más claridad la planta. |
| Domus Flavia y Domus Augustana, Roma, s. I. |
|
![]() |
Una vez que hemos aprendido el significado de los cógigos, el sistema permite entender cualquier planta dibujada con el mismo criterio. |
| Piazza d'Oro, Villa Adriana, Tívoli, s. II. |
Evidentemente, este sistema es la opción personal de un autor (Alberto Berengo Gardin), sacado de un libro (Henri Stierlin, El Imperio Romano, 2000), que identificamos por los colores que utiliza y el significado que les da. Hay que aclarar que la intención no es proponer un sistema, ni siquiera éste, sino ver la manera de mejorar la comprensión de una planta. Hay que entender que lo que se diferencie en la planta y la manera de hacerlo, dependerá del proyecto y de la necesidad de evidenciar aquello que se considere importante.
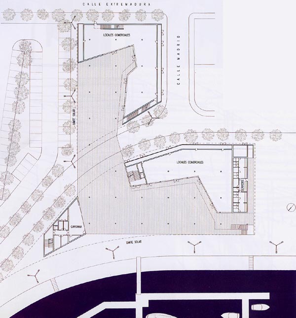
Veamos ahora dos dibujos de un mismo arquitecto, resueltos de manera diferente a la anterior pero igualmente coherente. El primero corresponde principalmente a un techo.
![]() |
| Vázquez Consuegra, Edificio de Capitanía del puerto de Ayamonte, Huelva.
La zona sombreada que aparece en medio corresponde a la cubierta que une las tres partes separadas del edificio. Si no fuera por esta sombra no se notaría la existencia de la cubierta. El arquitecto ya había dibujado su contorno con una línea de trazos, pero esto no parecía suficiente, a pesar de ser geométricamente correcta. De este modo, la plata refleja la importancia que la cubierta tiene en la percepción del edificio. Tal como se ha hecho, advertimos claramente la existencia de la sombra; aunque, posiblemente, deberemos consultar otros dibujos para entender de qué se trata realmente y a qué altura se encuentra. La siguiente es la imagen de este pórtico. |
![]() |
| Vázquez Consuegra, Edificio de Capitanía del puerto de Ayamonte, Huelva.
Podemos ver que era importante señalar su existencia dado que su impacto visual es más importante que el de los bloques cerrados. Finalmente, la representación es correcta, aunque el criterio sea diferente al anterior. El siguiente dibujo son dos plantas de un mismo edificio. |
![]() |
| Vázquez Consuegra, Ciudad de la Justicia, Almeria (concurso), 2000, plantas baja y cuarta.
Si se comparan las dos plantas se puede deducir que la sombra clara corresponde a la zona de circulación y la oscura en los despachos y espacios cerrados. De este modo se muestra claramente que, en la planta de la derecha, hay una zona no ocupada (no pisable). Con buen criterio, al arquitecto le ha parecido importante evidenciar estos vacíos. En cambio, no ha creído necesario mostrar la zona que, en la planta baja, no queda cubierta por las plantas superiores y que tienen una altura superior al resto. Al margen de esto, hay que ver también, cómo el arquitecto ha cambiado la representación de los árboles en las dos plantas: en la planta baja, los árboles aparecen seccionados por el tronco y con la copa en proyección, y en la planta superior se muestran vistos por encima. Una codificación diferente es la que se aplica en los siguientes dibujos, correspondientes a dos plantas (superior e inferior) de un mismo proyecto. |
![]() |
| Josep Llinas, Proyecto de concurso para la Universidad de Bocconi, Milán, planta -1, 2002. |
![]() |
| Josep Llinas, Proyecto de concurso para la Universidad de Bocconi, Milán, planta -2, 2002.
En este caso, la codificación resuelve, no ya la diferencia entre espacios cerrados y de circulación, sino la existencia de huecos, en el suelo y en el techo. Son las plantas del primer y segundo sótano (en gris oscuro se ha diferenciado la sección del terreno). En el interior de la planta -1 podemos ver que con un tono gris se señalan las partes vacías (no ocupadas) de la planta y, en la -2, estas partes sin techo aparecen con un color azul las partes donde no hay techo. Con este mismo criterio, en la planta -1, las zonas azules indican zonas no cubiertas, bien por que hay un doble espacio o bien porque hay una claraboya. |
![]() |
Estos son fragmentos de las plantas anteriores, en los que se puede ver mejor cómo, lo que en la planta superior es un espacio no ocupado en el suelo (gris claro), en la inferior es un espacio abierto en el techo (azul). |
![]() |
De este modo, el arquitecto mustra claramente la existencia de estas discontinuidades, evitando que una lectura poco atenta de la planta no detecte el grafismo (a veces poco visible) de una línea de trazos. |
El siguiente caso es singular en este sentido, ya que pretende reflejar el impacto expresivo de las partes no ocupadas.
![]() |
Aquí la codificación se aplica a ambas proyecciones, con una interpretación que es sutilmente diferente. La parte oscura es la parte ocupada y la blanca es la que corresponde al patio central. Sin embargo, si nos fijamos, la planta es la de acceso, donde no hay hueco en el suelo. Entonces, esta diferenciación significa el vacío que hay encima. Vemos que, dada la importancia que este vacío tiene en la sección, el arquitecto ha querido dejar patente su existencia, dado que esta parte es diferente, cualitativamente, del resto de la planta. |
| Alberto Campo Baeza, Banco de Granada, sección y planta baja, 1992. |
|
![]() |
Esta es una imagen de este espacio vacío, lo suficientemente importante como para dejarlo sin diferenciar. |
| Alberto Campo Baeza, Banco de Granada, 1992. |
En los casos que hemos visto, las codificaciones utilizadas han sido diferentes, con significados no coincidentes y, incluso, contrarios. En todos los casos ha habido la voluntad de hacer más comprensible la planta, hacerla más clara o describir con más precisión el espacio representado. Es la necesidad de comunicar la que hace que se hayan introducido estas diferenciaciones.
En todos los casos las codificaciones que se han mostrado son personales, dado que no existe una codificación compartida por todos, y todas tienen virtudes y limitaciones.
Es importante darse cuenta de que en ningún caso han sido codificaciones difíciles de descifrar: se han podido interpretar sólo con un pequeño examen del dibujo. En caso de que esta interpretación pudiera ser complicada, el dibujo debería incorporar una leyenda con el significado de las codificaciones
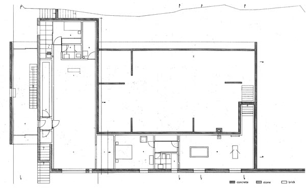
![]() |
En este caso, es una pequeña leyenda (que se ha señalado con el círculo rojo) en la que, teniendo en cuenta que es la "Planta de pavimentos interiores", se diferencian las zonas de la planta en las que se utiliza el mismo material de pavimentación: rayado cruzado (oscuro) para el mosaico cerámico, rayado sencillo (claro) para el mármol y sin rayado (blanco) para la madera. Hay que fijarse en que el grafismo no ha pretendido imitar la imagen del material y que el criterio ha dejado en blanco la zona más grande y más oscura la más pequeña.
En los dibujos siguientes, las diferenciaciones afectan a los materiales de cerramiento.
![]() |
La leyenda (debajo de la planta, a la derecha) aclara que los muros con el rayado estrecho (oscuro) son de hormigón, los de rayado ancho (claro) son de piedra y los blancos son de ladrillo.
Estas últimas diferenciaciones son de carácter diferente a las anteriores, dado que no se refieren a la forma del espacio sino a los materiales de construcción. Hay que entender que lo que hacemos básicamente en un dibujo es seleccionar y diferenciar, y es esto lo que indica su contenido y lo que tenemos que interpretar. Esta es una de las características del dibujo de la planta: el uso más libre que hacemos de ella.
La diferenciación conceptualVeremos ahora cuatro dibujos del mismo espacio (o lugar), hechos por la misma ocasión, por tres arquitectos diferentes. Con la misma base geométrica, los tres permitirán lecturas diferentes por causa de estas diferenciaciones.
En el primero vemos el río (por el color azul) y lo que parece ser la zona de intervención del proyecto (por el color amarillo). El resto es un conjunto de edificios que reconocemos por su contorno, entre los que se distinguen unos en los que se han dibujado las cubiertas, con una línea más delgada. Llaman la atención tres líneas rojas de las que no se puede deducir el significado (en este dibujo).
![]() |
| Francesco Venezia, Ampliación y reconstrucción del Neues Museum, concurso, Isla de los Museos, Berlín, 1994
En el siguiente dibujo los edificios se muestran con más claridad: son cinco edificios singulares, dibujados en sección, de estructura muy diferente. Entre ellos, está la propuesta del concurso, que se integra sin ninguna diferenciación. Los edificios del otro lado del río se tratan como una masa gris y, de ellos, no importa el interior. En este dibujo el río ha perdido el protagonismo que tenía en el anterior dibujo y, de hecho, no es fácil deducir que está ahí. |
![]() |
| Giorgio Grassi, Ampliación y reconstrucción del Neues Museum, concurso, Isla de los Museos, Berlín, 1995.
En el siguiente dibujo, la lectura de los edificios como piezas singulares es aún más clara, debido a que el arquitecto ha oscurecido lo que no son estos edificios. De los otros del entorno se ha dibujado sólo su contorno, sin diferenciarlos de las aceras de las calles. El resultado es que destacan claramente los edificios, aunque sin diferenciar el de la propuesta y, ahora sí, se ve el río. |
![]() |
| David Chipperfield, Ampliació i reconstrucció del Neues Museum, concurs, Illa dels Museus, Berlín, 1994.
El último vuelve a ser una representación con las cubiertas y las sombras solares, en todos los edificios aunque no con el mismo grado de detalle. Los edificios singulares se diferencia con un color azul, excepto el de la propuesta del proyecto que, extrañamente, no se diferencia de los edificios del entorno Incluso se dibujan las sombras solares, lo que da idea de la diferente altura de los edificios. |
![]() |
| Giorgio Grassi, Ampliación y reconstrucción del Neues Museum, concurso, Isla de los Museos, Berlín, 1995.
En todos estos dibujos, las diferenciaciones han hecho que lectura en cada caso cambiara. De ahí la importancia de controlar correctamente las diferenciaciones para que se ajusten a lo que su autor pretenden comunicar. Otro ejemplo de estas diferenciaciones es la siguiente. |
![]() |
| François Laurent Lamandé, Plan de extensión de Ruan, 1773.
Se trata de un plan para la ampliación de la ciudad de Ruan, en el que el autor ha diferenciado la ciudad antigua, tratándola en color gris, destacando en ella los edificios representativos en negro, de la ampliación que se proyecta en la otra orilla del río,que se ha dejado en blanco. Se trata de una diferenciación casi radical que pretende resaltar la novedad de la ampliación. Se han diferenciado también las zonas ocupadas por huertos, campos de cultivo y montaña. Son diferenciaciones claras, ligadas a las necesidades del discurso (conceptuales) más que a la semejanza física. |
![]() |
Otro caso similar es el siguiente, en el que, partiendo de la planta del área cercana al Palacio Real de Madrid, de 1734, se han diferenciado con diferentes tonos de azul, las manzanas en función de la fecha en que fueron incorporadas al recinto urbano: la más oscura corresponde al siglo IX y la más clara al XVIII. En tonos de verde el autor ha diferenciado las áreas del propio Palacio. |
| Ángel Martínez Díaz, Zona de la ciutat de Madrid pròxima al Palau Vell, c.1734, 2008. |
En los dibujos que hemos visto hasta ahora, las diferenciaciones han permitido mejorar la descripción de la forma de un edificio (dentro-fuera, cubierto-descubierto), mejorar la comprensión de contenidos difícilmente representables en un dibujo o de aquellos de carácter conceptual que dependen no tanto del edificio como de lo que se quiere contar. Si el dibujo de los alzados estaba en gran parte vinculado a la percepción visual (a lo que vemos), y por eso el interés se dirigía a la representación de la tercera dimensión que el dibujo pierde en la proyección ortogonal, en los dibujos de planta el interés tiende a dirigirse a explicar cómo es el edificio o cómo hemos de entenderlo. Sin embargo, los recursos utilizados en los alzados, para sugerir la profundidad también tienen aplicación en las plantas, para diferenciar los niveles. Veremos ahora algunos casos concretos.
El relieveEl siguiente dibujo es un fragmento de la planta de la Ópera de Paris, de su escalera principal.
| Charles Garnier, Escalera principal de la Ópera de París, 1861-1875, grabado de 1878.
Con una graduación sutil de los gruesos de línea y, principalmente, con el oscurecimiento de las partes más lejanas, se consigue sugerir el hueco del patio, la mayor profundidad del nivel inferior y como los tramos de escala continúan bajando por debajo de los superiores. El siguiente es un espacio más abstracto. |
|
![]() |
En este caso, con el uso del valor de línea, el oscurecimiento y las sombras solares, se consigue sugerir la existencia de una superficie plana, agujereada por una trama de cuadrados hundidos, sobre la que sobresalen unos volúmenes rojos y blancos. Por encima de esta trama, se superpone el dibujo de unos polígonos claros, sin relieve. Esta lectura se confirma en el siguiente dibujo, en el que vemos que las manchas claras son edificios, posiblemente preexistentes al proyecto, que por esta razón el arquitecto ha querido destacar. |
![]() |
|
| Peter Eisenmann, Reorganización y desarrollo urbano del Cannaregio Oest, Venecia, 1978.
El siguiente dibujo es un ejemplo de cómo el dibujo de las sombras solares permite mostrar el relieve de una planta. |
|
![]() |
|
| Adolphe Alphand, Parc des Buttes Chaumont, París, 1867.
Este mismo relieve se puede representar con el dibujo de las curvas de nivel, como se ve en el dibujo siguiente. |
|
![]() |
|
| Adolphe Alphand, Plano de curvas de nivel del Parc des Buttes Chaumont, París, 1867.
La lectura atenta de esta representación permite entender la volumetría y con más precisión, si se conoce el intervalo entre las curvas. La anterior representación era más intuitiva y más fácil de entender visualmente. Las dos son correctas pero tienen aplicaciones diferentes.
|
|
© de los textos Francisco Martínez Mindeguía.
>> Vuelve al inicio de la página
>> Vuelve a Teorías del dibujo
>> Vuelve a la página de inicio



























