Introducción
La axonometría es un tipo de representación que permite mostrar, en una misma imagen, la planta y dos alzados de un volumen elemental. Comparada con la perspectiva, conserva el paralelismo de las líneas y las proporciones de los elementos (sin reducir las dimensiones con la distancia). Si la perspectiva viene determinada por la situación del punto de vista, la orientación y el ángulo de apertura, en la axonometría sólo interviene la orientación de los ejes principales. Comparada con la proyección en planta o alzado, la axonometría sólo permite medir en la dirección de los ejes principales pero es más útil para ver el edificio como volumen.
Llegados a este punto, todos conocemos los cuatro tipos convencionales de axonometría que utilizamos (isometría, din-5, militar y caballera), conocemos sus características y sabemos cómo construirlas. La siguiente es un ejemplo de axonometría militar.
![]() |
| James Stirling y James Gowan, Queen's College, St-Clements, Osford, 1966-1971, axonometría.
Una axonometría como ésta permite entender fácilmente la forma global del edificio: ver que se va escalonando con la altura, con muros inclinados a las plantas inferiores y una estructura de soporte en forma de caballete en la planta baja. Es más fácil, rápido y eficaz llegar a entender la compleja volumetría de este proyecto con esta axonometría que con la serie completa de plantas, secciones y alzados. |
![]() |
| J. Stirling y J. Gowan, Queen's College, St-Clements, Osford, 1966-1971, Plantas y sección.
El examen atento de estas proyecciones permite también entender como es la volumetría del edificio, pero la axonometría da esta información con una sola imagen. Es por tanto más directo, con un esfuerzo de racionalización de menos. Por otra parte, ver los edificios tal como se muestran en una axonometría, por encima y a una gran distancia relativa de ellos, hace que la percepción sea similar a la de estar viendo una maqueta del edificio: una representación reducida que nosotros podríamos manipular como si fuera un objeto. |
![]() |
| Steven Holl, Maqueta de la Van Zandt Residence, East Hampton, Nueva York, 1983.
Talvez sea ésta la razón por la que, a menudo, se utiliza este tipo de proyección para mostrar los edificios como si fueran objetos sin peso, que se pueden manipular para mostrarlos por dentro: levantando el edificio para verlo por debajo, seccionandolo y eliminando una parte, descomponiéndolo en partes para mostrarlas separadas, o haciendo que una parte sea transparente. La principal razón de estas manipulaciones es mostrar el edificio por dentro: lo que no se ve por fuera y que no se muestra suficientemente en una sección. Un objetivo que se consigue con operaciones que conllevan una pérdida de la imagen global del edificio. Trataremos ahora estas manipulaciones, empezando por este primer tipo. |
La vista interior
![]() |
Esta es una axonometría similar a la del ejemplo anterior. Es el pabellón de una exposición en un parque. El arquitecto ha querido mostrar que hay árboles alrededor pero para evitar que estos taparan el edificio los ha dibujado como si estuvieran cortados. El dibujo muestra la forma de la cubierta y la franja de pavimento que rodea al edificio. Para poder mostar la parte interior que aquí no se ve, el arquitecto hizo también la siguiente axonometría. |
| J. Stirling y J. Gowan, Pabellón de la editorial Electa en la Biennal de Venecia, 1989 (vista superior) |
|
![]() |
Es el mismo edificio pero visto por debajo. Aparentemente es como si lo hubiéramos levantado y viéramos por debajo. Como operación, equivale a seccionar el edificio a ras de suelo y levantarlo. Como resultado, se ve la planta del edificio, porque se ha conservado el rastro de esta sección, se ven también los paramentos interiores, la cara inferior del techo y la estructura de soporte de la cubierta. Sin embargo, se ha perdido la relación del edificio con lo que le rodea: el edificio parece suspendido en el aire, sin ningún contacto con el suelo. Esta es la operación elemental. Veamos ahora otros ejemplos en los que esto se complica. |
| J. Stirling y J. Gowan, Pabellón de la editorial Electa en la Biennal de Venecia, 1989 (vista superior) |
|
La sustracción
![]() |
En muchos casos, para entender mejor la forma interior de un edificio, es conveniente seccionarlo también verticalmente (el ejemplo que se muestra corresponde al Panteón de Roma). Esta axonometría muestra la planta del Panteón, y la secció. Como resultado, con una única imagen tenemos la representación conceptualmente completa del interior del Panteón. Realmente, no es una sección vertical sino dos medias secciones, resultado de dos planos de sección diferentes que coinciden en el eje central, para poder mostrar la sección de dos partes diferentes del muro de cerramiento. Como se puede ver, la sección horizontal y las verticales tienen un tratamiento diferente de las partes macizas, lo que favorece su lectura. Sólo se muestra medio edificio pero la simetría de la planta permite "reconstruir" la parte que falta. La imagen siguiente también corresponde al Panteón. |
| Auguste Choisy, “Panthéon”, Histoire de l’architecture, 1899, f. 15. |
|
![]() |
En este caso, con el objetivo de explicar con más detalle la constitución interior de los cierres, uno de los planos verticales sigue un trazado más complicado y se eliminan también partes del revestimiento para hacer visible los elementos estructurales. Para poder mostrar la constitución interior de los muros, las partes seccionadas no se han rellenado y la diferenciación se ha resuelto con un regrueso del contorno. Como resultado, se hace difícil entender la sección. El exceso de información dificulta su comprensión. Una solución posible para este problema es el cambio que se propone, que consiste en rellenar las secciones como en el caso anterior. |
![]() |
Para hacer más comprensible la complicada sección de la derecha, se diferencian los planos horizontales en negro y los verticales en gris. La axonometría sigue siendo complicada pero se ha facilitado su lectura. En todo caso no acostumbra a ser útil utilizar planos de sección excesivamente complicados. |
![]() |
En el ejemplo anterior, la visión cenital (ver el edificio por debajo), permitía mostrar los casetones de la cúpula. Excepto casos de este tipo, si no es necesario ver la cara interior del techo, la combinación de sección vertical y horizontal, no zenital, es más útil ya que permite ver la volumetría interior sin perder el reconocimiento de la planta, como en este caso. Este sería un ejemplo de aplicación sobre un caso similar, en el que se entiende la forma interior del edificio y, además, se puede mostrar la planta completa y recuperar la relación con el entorno que se había perdido. En este caso la sección vertical se ha dejado sin rellenar y, en cambio, se han sombreado los muros para reforzar la expresividad de la curvatura. El siguiente ejemplo está planteado de esta manera, con dos secciones y visto por encima, pero la escasa diferenciación entre el tratamiento de las secciones vertical y horizontal hace difícil entender dónde termina una y empieza otra. |
| A. Choisy, "Salónica", L'Art de bâtir chez les Byzantins, 1883. |
![]() |
| Oswald Mathias Ungers, Museo Alemán de Arquitectura, Frankfurt, 1979-1984. |
La separación
![]() |
Otro recurso habitual para mostrar el interior de los edificios es "separales" la cubierta o la fachada y dejarlos desplazados para entender la operación realizada. En realidad, se trata de una variante de sección horizontal o vertical anterior, en la que la parte sustraída se conserva, desplazada de su posición real. En este ejemplo que se muestra, cuatro líneas en los puntos extremos permiten entender el desplazamiento que se ha hecho. |
| Edificio Porte Molitor, de Le Corbusier. |
Lo mismo se puede hacer sacando la fachada.
![]() |
| Steven Holl, Metz House, Staten Island, Nueva York, 1980. |
La estratificación
![]() |
Cuando lo que se intenta representar es un conjunto de elementos similares, compuesto por varias plantas, un recurso habitual para mostrarlas todas en un mismo dibujo es el de este ejemplo. El arquitecto ha aprovechado que los cuatro volúmenes de los ángulos eran similares para mostrar las diferentes plantas del edificio, eliminando el techo en uno de ellos y una planta o dos en los demás. En este caso, la parte eliminada no se conserva desplazada, como en el caso anterior, porque el volumen que se ha conservado entero permite entender la forma inicial. |
| Mario Botta, Centro para industrias auxiliares, Balerna, Suiza, 1978-1980. |
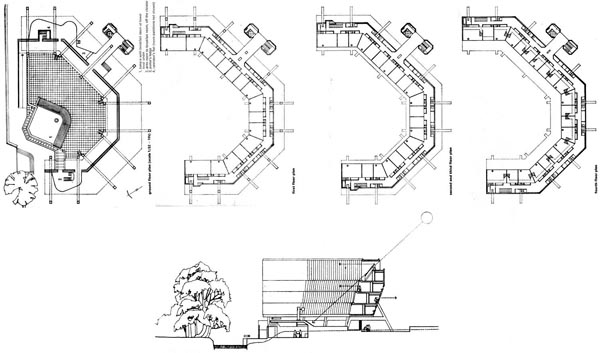
En el ejemplo siguiente, se ha aprovechado que se trata de una agrupación en hilera de bloques idénticos para mostrar la distribución interior del primer piso y del último. En este caso, la sección vertical se ha dejado blanca, para que no se confunda con la horizontal.
![]() |
| J. Stirling y J. Gowan,
El siguiente es un caso similar pero resuelto de manera que habría que evitar. |
![]() |
| MBM, “Manzana Mollet”, Mollet, 1983-1987.
Si se trata en cambio de un edificio sin elementos repetidos, una solución puede ser la del siguiente ejemplo, en el que se ha hecho lo mismo para cada una de las plantas del edificio, en axonometrías diferentes que se componen juntas para que se entiendan. |
![]() |
| M. Botta, Casa unifamiliar, Origlio, Suïssa, 1981-1983.
Otra opción es separar todas las plantas. El problema es que se pierde la imagen de conjunto. Para compensarlo, en este caso el arquitecto ha añadido también una imagen de la suma y el lugar que estas partes ocupan en el conjunto. |
![]() |
| Steven Holl, Hybrid Building, Seaside (Florida), 1958-1988.
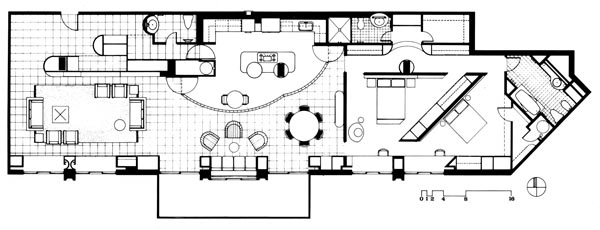
No hay que olvidar que la axonometría es eficaz para mostrar la volumetría del edificio, pero no para sustituir a los otros tipos de proyección. Si lo que se pretende mostrar sólo es la distribución interior, una simple planta es una solución mejor que la axonometría de esta misma planta. El siguiente ejemplo, de la axonometría de la planta de un apartamento permite, permite entender esto. |
![]() |
| Robert A. M. Stern, Apartament a Elkins Park, Pennsylvania, 1975.
El siguiente dibujo es la planta convencional de este mismo apartamento. |
![]() |
| Robert A. M. Stern, Apartament a Elkins Park, Pennsylvania, 1975. |
Es evidente que la axonometría ha complicado la lectura de la planta. Muestra la superficie de los muros pero reduce la superficie visible del suelo (que queda ocupado por estos muros). La parte superior y la derecha de la planta se ha convertido en una acumulación confusa de líneas que no mejora la lectura de la planta. En esta axonometrías sería imposible introducir la distribución de muebles que aparece en la planta/.
La transparencia
![]() |
Otra opción para ver el interior de los volúmenes, sin sacar el techo, es hacer que el techo sea transparente. El problema en este caso es que no lleve a confusión y se entienda que el techo es realmente transparente, en vez de una operación para ver el interior. Los ejemplos siguientes son trabajos de los alumnos del curso "Dibujo Arquitectónico", de 1963-1964, de la Escuela Politécnica Superior de la Universidad CEU San Pablo, de Madrid (dirigidos por Aitor Goitia Cruz). En el primero de ellos el techo es literalmente transparente, sin que ningún elemento sugiera que realmente es opaco. |
| Ismael Fraile, Casa en Termini di Sorrento, del arquitecto Bruno Morassutti, 1963-1964. |
En el siguiente, el techo se representa seccionado para mostrar cómo es su perfil y, al mismo tiempo, sugerir que se trata realmente de un cuerpo opaco.
![]() |
| Esteban Becerril, Casa en Termini di Sorrento, del arquitecto Bruno Morassutti, 1963-1964. |
En resumen y, independientemente del método utilizado, hay que conseguir que se entienda la operación que se ha realizado, evitando que se pueda deducir que el edificio no tiene techo, que no tiene fachada o que el techo o las pareces son realmente transparentes.
La descomposición
Otra operación normal, ya no para ver el interior, sino para entender la composiciones es separar sus elementos.
![]() |
En este caso, el dibujo muestra desplazadas las diferentes partes y unas líneas muestran el rastro del desplazamiento para que el observador pueda recomponer la agrupación inicial. |
| Michael Elkan (Norman Foster), Stansted Airport, base visible de uno de los pilares de la cubierta, Londres, 1991. |
|
![]() |
Este es un caso que habría que evitar. El dibujo muestra con detalle las partes que componen el edificio y los desplazamientos que se han realizado, pero es casi imposible imaginar cómo sería la forma inicial con todas las piezas en su lugar de origen. |
| Luis Moreno Mansilla y Emilio Tuñón, Museo Arqueológico de Zamora, Zamora, 1992. |
Si debido a la excesiva complejidad de la descomposición, se pierde la imagen del conjunto de partida, será conveniente añadir otro dibujo que la muestre. Así, en el caso siguiente se ve la dificultad de entender de qué edificio se trata.
![]() |
| Jones Partners, Cabaña de invitados en las montañas.
El problema queda resuelto mostrando también el dibujo del conjunto montado. |
![]() |
| Jones Partners, Cabaña de invitados en las montañas.
Se conserva un dibujo de Leonardo da Vinci (del Códex Atlántico, 1493) que es ejemplar para este caso, en el que explica cómo funciona y qué partes componen un cabrestante (un torno que se utilizaba para levantar grandes pesos). Leonardo opta aquí por una representación que le permite mostrar el eje frontal y las piezas ligeramente giradas. Leyendo el dibujo de izquierda a derecha, empieza con la imagen del dispositivo montado y sigue con su descomposición en partes. |
![]() |
| Leonardo da Vinci, Códex Atlántico, 1493.
El dibujo podría servir para que alguien construyera una máquina de este tipo. Un factor importante para esta comprensión es que Leonardo mantenga la imagen del cabrestante montado, junto a los componentes separados. Sin ella sería difícil imaginar cuál podría ser la forma final. |
© de los textos Francisco Martínez Mindeguía.
>> Vuelve al inicio de la página
>> Vuelve a Teorías del dibujo
>> Vuelve a la página de inicio

























